
1790 Drumming Windsor, CO 80550
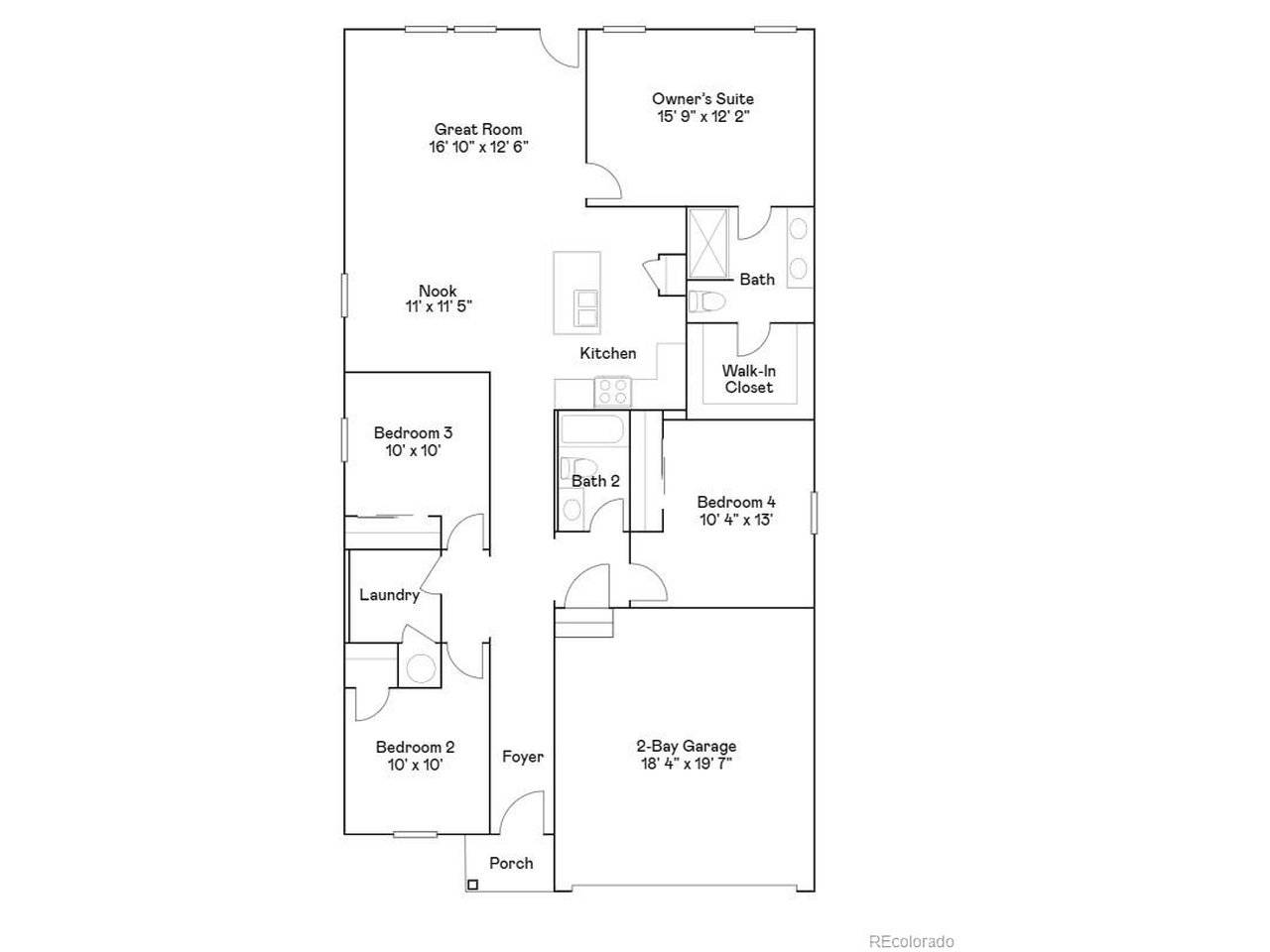
4 Beds
2 Baths
1,672 SqFt
UPDATED:
Key Details
Property Type Single Family Home
Sub Type Single Family Residence
Listing Status Active
Purchase Type For Sale
Square Footage 1,672 sqft
Subdivision Prairie Song
MLS Listing ID IRE4494494
Bedrooms 4
Full Baths 1
Three Quarter Bath 1
HOA Fees $125/mo
HOA Y/N Yes
Year Built 2025
Annual Tax Amount $5,076
Tax Year 2024
Lot Size 6,098 Sqft
Acres 0.14
Property Sub-Type Single Family Residence
Source ires
Property Description
Location
State CO
County Weld
Community Prairie Song
Area Greeley/Weld
Rooms
Basement Crawl Space
Interior
Interior Features Eat-in Kitchen, Open Floorplan, Pantry, Walk-In Closet(s), Kitchen Island
Heating Forced Air
Cooling Central Air
Appliance Dishwasher, Refrigerator, Microwave, Disposal, Fire Alarm
Exterior
Exterior Feature Sprinkler System
Garage Spaces 2.0
Community Features Clubhouse, Pool, Playground, Fitness Center, Park, Trail(s)
Utilities Available Electricity Available
View Y/N No
Roof Type Composition
Porch Patio
Garage Yes
Building
Lot Description Abuts Public Open Space, Paved
Sewer Public Sewer
Water City
Structure Type Frame,Stone,Wood Siding
New Construction true
Schools
Elementary Schools Grand View
Middle Schools Windsor
High Schools Weld Re-4
School District Weld Re-4
Others
Acceptable Financing Cash, Conventional, FHA, VA
Listing Terms Cash, Conventional, FHA, VA
Special Listing Condition Builder
Virtual Tour https://www.lennar.com/new-homes/colorado/denver/windsor/prairie-song/the-petal-collection/dolly/12436602m09/virtual-tour




